₹7500.00

Features
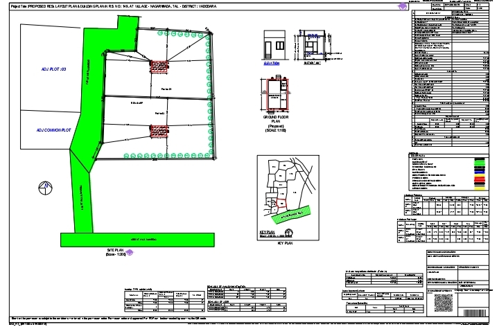
  • Sqft: 16112
Location

Next to Dr. Doshi's Hospital, Behind HDFC Bank, (Old Ambe Vidyalaya), Before Amit Nagar, VIP Road, Karelibaug, Vadodara. 390018

Description

🏡 Residential Plot for Sale – Karelibaug, VIP Road, Vadodara Prime location residential plot measuring 16,112 sq.ft. available for sale near Dr. Doshi’s Clinic, behind HDFC Bank, close to Old Ambe Vidyalaya, before Amitnagar, on VIP Road, Karelibaug. 📍 Location Advantage: Situated in one of Vadodara’s most developed & demanded areas Surrounded by premium residential and commercial projects Wide road access, peaceful locality, and all amenities nearby 💰 Rate: ₹7,500 per sq.ft. 📏 Total Area: 16,112 sq.ft. 🏗️ Ideal for: Residential Scheme / Premium Bungalows / Builder Project

Overview
  • Property Type: Residential
  • Property: Residential Plot
  • Transaction Type: For Sale
  • Carpet/Built-up Area: SqFt
  • Size: 16112 SqFt
Property Details
Total Area Size (SqFt):
16112
Carpet/Built-up Area (SqFt):
Furnishing Status:
Unfurnished
Facing Direction:
East
Property Price:
₹7500.00
Negotiable:
No
Maintenance Charges:
₹0.00
Booking/Token Amount:
₹0.00
Legal & Ownership Info
Ownership Type:
Freehold
Loan Availability:
Yes
Encumbrance Certificate:
No
Amenities and features
Location Details
  • City
    VIP Road, Karelibaug, Vadodara
  • Pin code
    390018
What’s nearby?

Explore nearby amenities to precisely locate your property and identify surrounding conveniences, providing a comprehensive overview of the living environment and the property's convenience.

  • Schools / Colleges : 1.1 km
  • Hospitals : 1.2 km
  • Markets / Shopping Malls : 1.5 km
  • Railway Station / Bus Stop : 5.9 km
  • Temples / Parks : 1.4 km
Contact Sellers
Whatsapp
Why Choose Us?
  • Secure Booking
  • Best Price Guarantee
  • Easy Booking Process
  • Available Support 24/7
whatsapp
listing